Helle, freundliche Bürofläche mit Sheddach im DORNIEDEN BUSINESS CAMPUS in 41068 MG
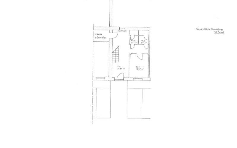
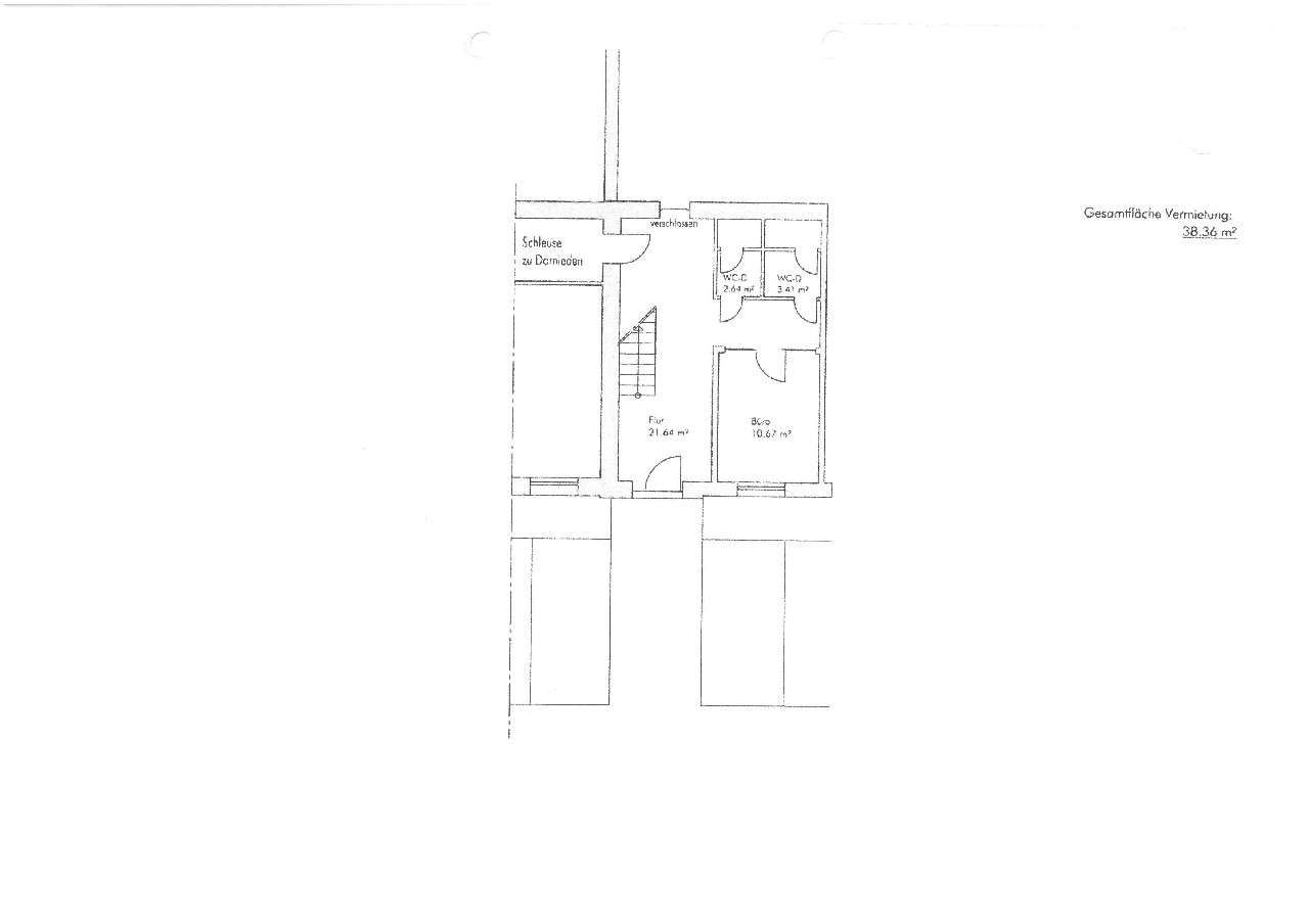
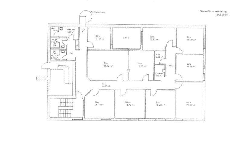
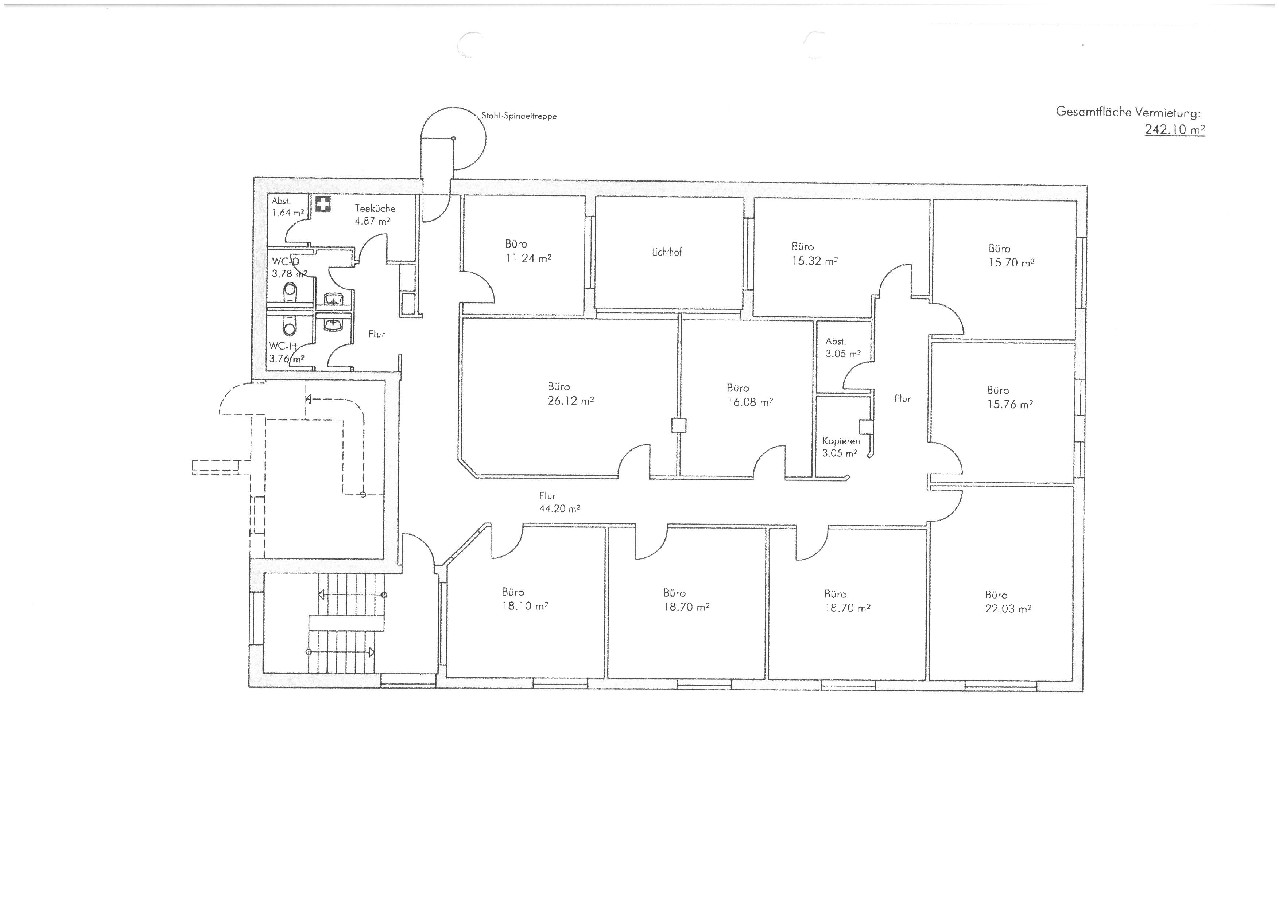
Die helle Bürofläche befindet sich im Erd- u. 1. Obergeschoss des 2-geschossigen Verwaltungsgebäudes. Im Erdgeschoss befindet sich ein Besprechungs- oder Empfangsraum. Über das sehr gepflegte Treppenhaus gelangen Sie in die Räume des Obergeschosses.
Aufgrund der Sheddach-Konstruktion bieten die Büroräume eine traumhafte Belichtung; ideal für künstlerische und kreative Berufe! Über Brüstungskanäle sind alle Räume mit einer CAT-7 Verkabelung ausgestattet. Die Böden sind mit einem strapazierfähigen Teppichboden versehen.
Auf dem hauseigenen Parkplatz direkt vor dem Gebäude stehen PKW-Stellplätze für eine Anmietung zur Verfügung.
Der Gebäudekomplex liegt auf der Karstraße, der Querverbindung der beiden Einfallstraßen Aachener- und Monschauer Straße.
Über die Bushaltestelle „Hehnerstraße“ (Linien 015, 025) ist der öffentliche Personen-Nahverkehr fußläufig bequem zu erreichen.
Auch der Mönchengladbacher Hauptbahnhof ist in wenigen Fahrminuten erreichbar.
Das direkte Umfeld ist überwiegend durch gewerbliche Nutzer geprägt.
– Gas-Etagenheizung
– Holzfenster, isolierverglast
– CAT7-Brüstungskanal
– Stellplätze hinter dem Haus
– Teeküche
– Parkplätze vor dem Gebäude
– Ideale Belichtung durch Sheddach.
| Objekt ID: | 4265 |
| Verfügbar ab: | sofort |
| Miete: | 1.485,00 EUR |
| Nebenkosten: | 300,00 EUR |
| Miete Stellplatz/Carport: | 25,00 EUR |
| Kaution: | 5.000 € |
| Nutzfläche: | 198,00 m² |
| Gesamtfläche: | 198,00 m² |
| Etage: | 1 |
| Baujahr: | 1994 |
| Objektzustand: | gepflegt |
| Zusatzinformation zur Lage: | Waldhausen |
| Heizkosten in Warmmiete enthalten: | nein |
| Anzahl Außenstellplätze: | 5 |
| Außenstellplatzmiete: | 25 € |
| Stellplätze: | 5 |
| Bürofläche: | 198 m² |
| Bodenbelag: | Fliesen |
| Energieausweis gültig bis: | 29.05.2035 |
| Energieausweis-Ausstellungsdatum: | 30.05.2025 |
| Energieausweis-Jahrgang: | ab Mai 2014 |
| Energieausweis-Gebäudeart: | Nichtwohngebäude |
| Heizungsart: | Etagenheizung |
| Befeuerungsart: | Gas |
| Wert des Endenergiebedarfs: | 166 kWh/(m²*a) |
| Endenergiebedarf (Heizung): | 166 kWh/(m²*a) |
| Art des Energieausweises: | Bedarf |














