Moderne Bürofläche mit bester Autobahnanbindung in MG-Ost
Über das repräsentative Eingangsportal gelangen Sie in diese gepflegte Büroimmobilie. Über die moderne Aufzugsanlage lässt sich die Büroeinheit im 1. Obergschoss bequem erreichen.
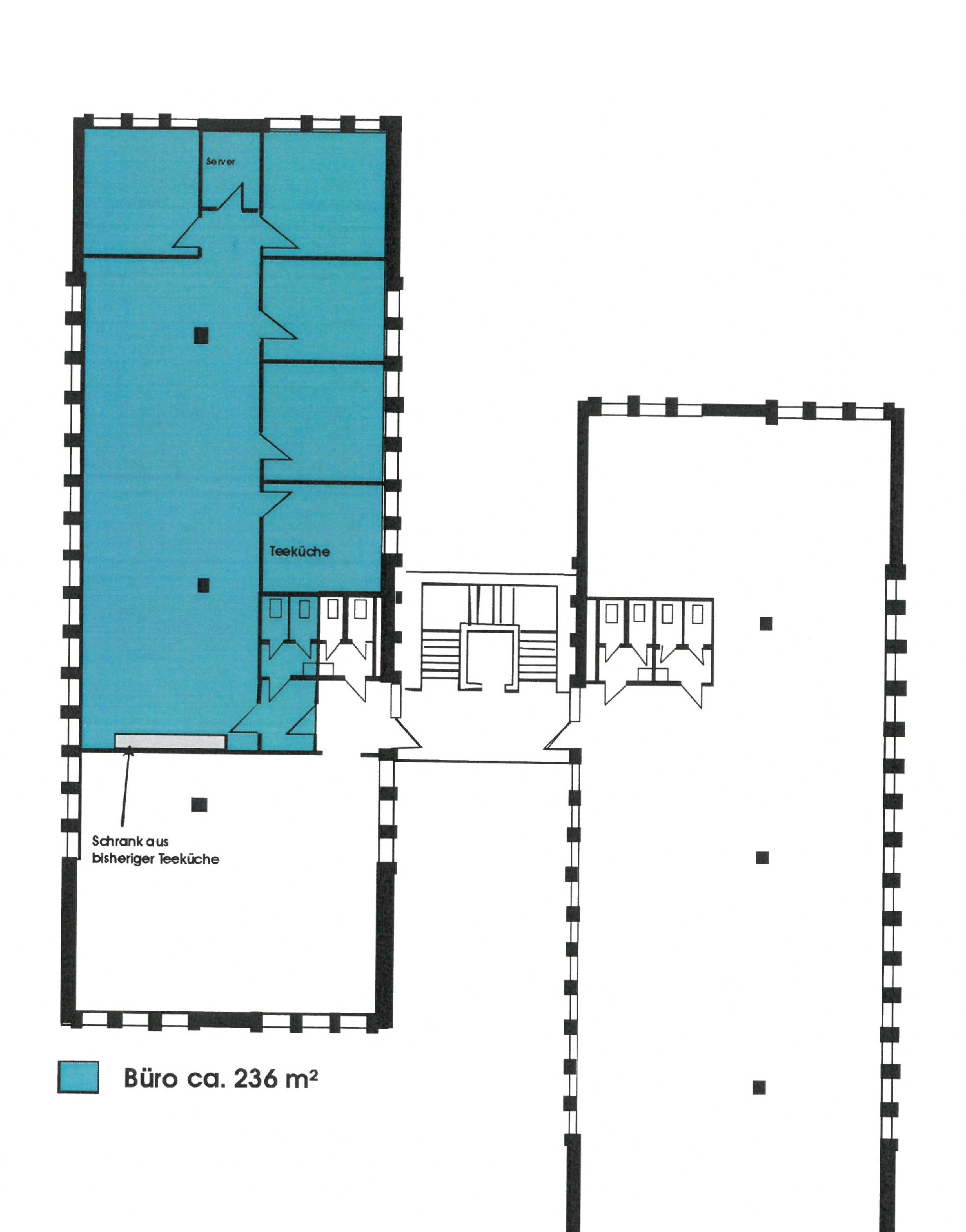
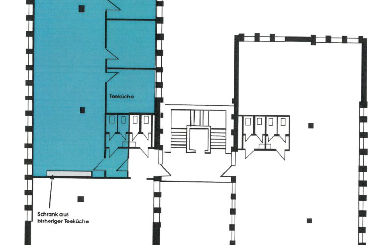
Die Mieteinheit besteht aus einem großzügigen, offen gestalteten Bürobereich, einer Teeküche, einem kleinen Serverraum, einem WC-Kern mit Damen- und Herrentoilette sowie vier weiteren Büro- und Konferenzräumen. Der Grundriss ist bei Abschluss eines langfristigen Mietvertrages an besondere Bedürfnisse des Mieters anpassbar.
Das zeitlos und klar strukturiert gestaltete Bürogebäude befindet sich im Osten von Mönchengladbach, nahe dem Regionalflughafen und den Autobahnauffahrten MG-Neuwerk (A 52) und MG-Ost (A 44). Auch die Landeshauptstadt Düsseldorf mit ihrem Flughafen ist vom Standort aus bequem in 15-20 Minuten erreichbar.
– Kunststofffenster, isolierverglast, Sonnenseite mit außenliegendem Sonnenschutz
– Gas-Zentral-Heizung
– Teppichboden (wird vor Mietbeginn in Absprache mit dem neuen Mieter ausgetauscht)
– Cat-7-EDV-Verkabelung über Brüstungskanäle
– Stellplätze direkt am Objekt
– WC-Kerne mit Damen- und Herren-WC
– Rasterbauweise sorgt für ein hohes Maß an Flexibilität.
| Objekt ID: | 4554 |
| Verfügbar ab: | nach Absprache |
| Miete: | 1.864,40 EUR |
| Nebenkosten: | 660,80 EUR |
| Miete Stellplatz/Carport: | 30,00 EUR |
| Kaution: | 5.592 € |
| Nutzfläche: | 236,00 m² |
| Gesamtfläche: | 236,00 m² |
| Etage: | 1 |
| Baujahr: | 1993 |
| Objektzustand: | gepflegt |
| Zusatzinformation zur Lage: | Uedding |
| Preise zuzüglich Mehrwertsteuer: | ja |
| Anzahl Außenstellplätze: | 6 |
| Außenstellplatzmiete: | 30 € |
| Stellplätze: | 6 |
| Bürofläche: | 236 m² |
| Art der Ausstattung: | gehoben |
| Bodenbelag: | Teppich |
| Energieausweis gültig bis: | 06.04.2035 |
| Energieausweis-Ausstellungsdatum: | 07.04.2025 |
| Energieausweis-Jahrgang: | ab Mai 2014 |
| Energieausweis-Gebäudeart: | Nichtwohngebäude |
| Heizungsart: | Zentralheizung |
| Befeuerungsart: | Gas |
| Wert des Endenergiebedarfs: | 53,80 kWh/(m²*a) |
| Endenergiebedarf (Heizung): | 53,80 kWh/(m²*a) |
| Endenergiebedarf (Strom): | 3,50 kWh/(m²*a) |
| Art des Energieausweises: | Verbrauch |



















