Moderne Erdgeschoss-Maisonettewohnung mit schönem Garten in historischem Gebäude in MG-Wickrath
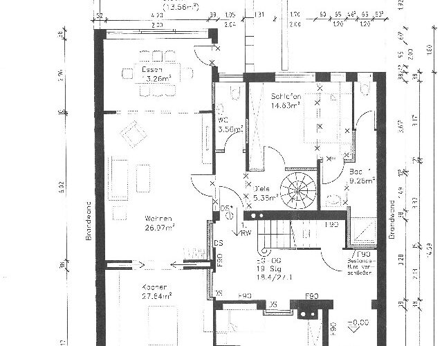
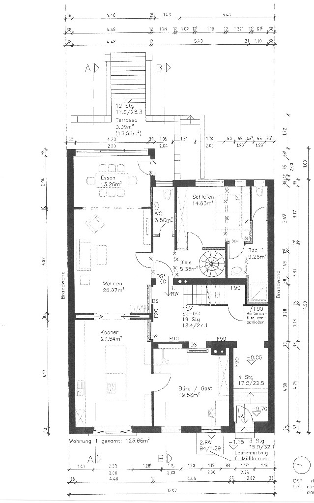
Im Erd-/Untergeschoss der Immobilie befindet sich diese großzügig geschnittene 4-Zimmerwohnung.
Sie bietet ein herrschaftliches Wohn-/Esszimmer mit herrlichem Blick in den Garten. Eine große Küche ist durch eine Doppel-Schiebetür vom Wohnzimmer getrennt. Edle Parkettböden, historische Heizkörperverzierungen, Fensterbänke aus belgischem Granit sowie hohe Decken mit aufwendigen Stuckelementen verleihen dieser Wohnung einen besonderen Charme, den Neubauten nicht erzeugen können.
Angrenzend an das Wohnzimmer befindet sich eine kleine Terrasse. Über eine imposante Treppe erreichen Sie den Garten, für den die Erdgeschossmieter das alleinige Nutzungsrecht erhalten.
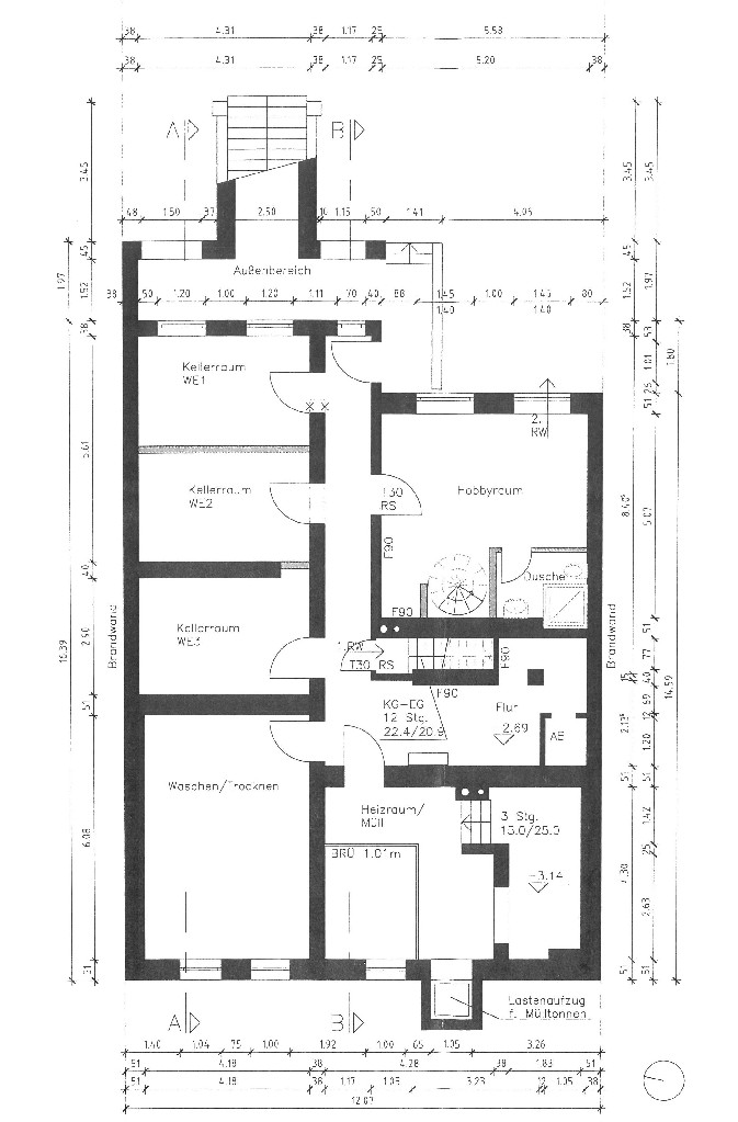
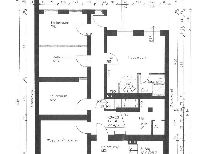
Ein großes Schlafzimmer mit eigenem Badezimmer, ein Gäste-WC sowie ein weiteres Gäste-/Arbeitszimmer runden das gelungene Wohnprogramm im Erdgeschoss ab. Über eine innenliegende Wendeltreppe erreichen Sie das Untergeschoss, in dem ein zweites Schlaf-/Arbeitszimmer mit weiterem Duschbad auf Sie wartet.
Das Gebäude liegt im Zentrum des südlichen Mönchengladbacher Stadtteils Wickrath. Im Ort finden Sie alle wichtigen Einkaufs-, Sozial- und Infrastruktureinrichtungen des täglichen Bedarfes, wie z. B. Lebensmittel- und Drogeriemärkte, Bank-Filialen, Ärzte und Apotheken.
Wickrath verfügt über eine Grundschule, eine Realschule und mehrere Kindergärten. Gymnasien sind in den Nachbarorten Rheydt, Odenkirchen und Rheindahlen ebenfalls schnell erreichbar.
Direkt vor der Haustür liegen der Schlosspark Wickrath, das Schlossbad Niederrhein sowie die Eventhalle Kunstwerk, überregional bekannt und beliebt, sowie der Niersgrünzug.
Im Grünen finden hier Spaziergänger, Jogger und Walker ideale Voraussetzungen zur Ausübung ihrer Hobbys.
– historischer Parkettboden
– moderne Badezimmer mit ebenerdiger Dusche
– hohe Decken
– Garten
– Kellerraum
– viele historische Bauelemente
– Neben dem Gebäude befinden sich insgesamt 7 Stellplätze.
| Objekt ID: | 4444 |
| Verfügbar ab: | nach Absprache |
| Miete: | 1.495,00 EUR |
| Nebenkosten: | 426,00 EUR |
| Miete Stellplatz/Carport: | 75,00 EUR |
| Kaution: | 4.485 € |
| Zimmer: | 4 |
| Schlafzimmer: | 3 |
| Badezimmer: | 2 |
| Wohnfläche: | 142,00 m² |
| Etage: | EG |
| Baujahr: | 1900 |
| Letzte Renovierung: | 2021 |
| Objektzustand: | vollsaniert |
| Zusatzinformation zur Lage: | Wickrath |
| Heizkosten in Warmmiete enthalten: | ja |
| Anzahl Außenstellplätze: | 2 |
| Außenstellplatzmiete: | 75 € |
| Stellplätze: | 2 |
| Separate WCs: | 1 |
| Terrassen: | 1 |
| Art der Ausstattung: | gehoben |
| Bodenbelag: | Fliesen, Parkett |
| Badausstattung: | Dusche, Fenster |
| Energieausweis-Jahrgang: | nicht erforderlich |
| Heizungsart: | Zentralheizung |
| Befeuerungsart: | Gas |
























